For current product information, please make use of the new GCE Medical and GCE Speciality sites EXPLORE NOW close
Home » LOW FLOW RANGE - DUAL STAGE - EXTERNAL GAS PURGING SYSTEM

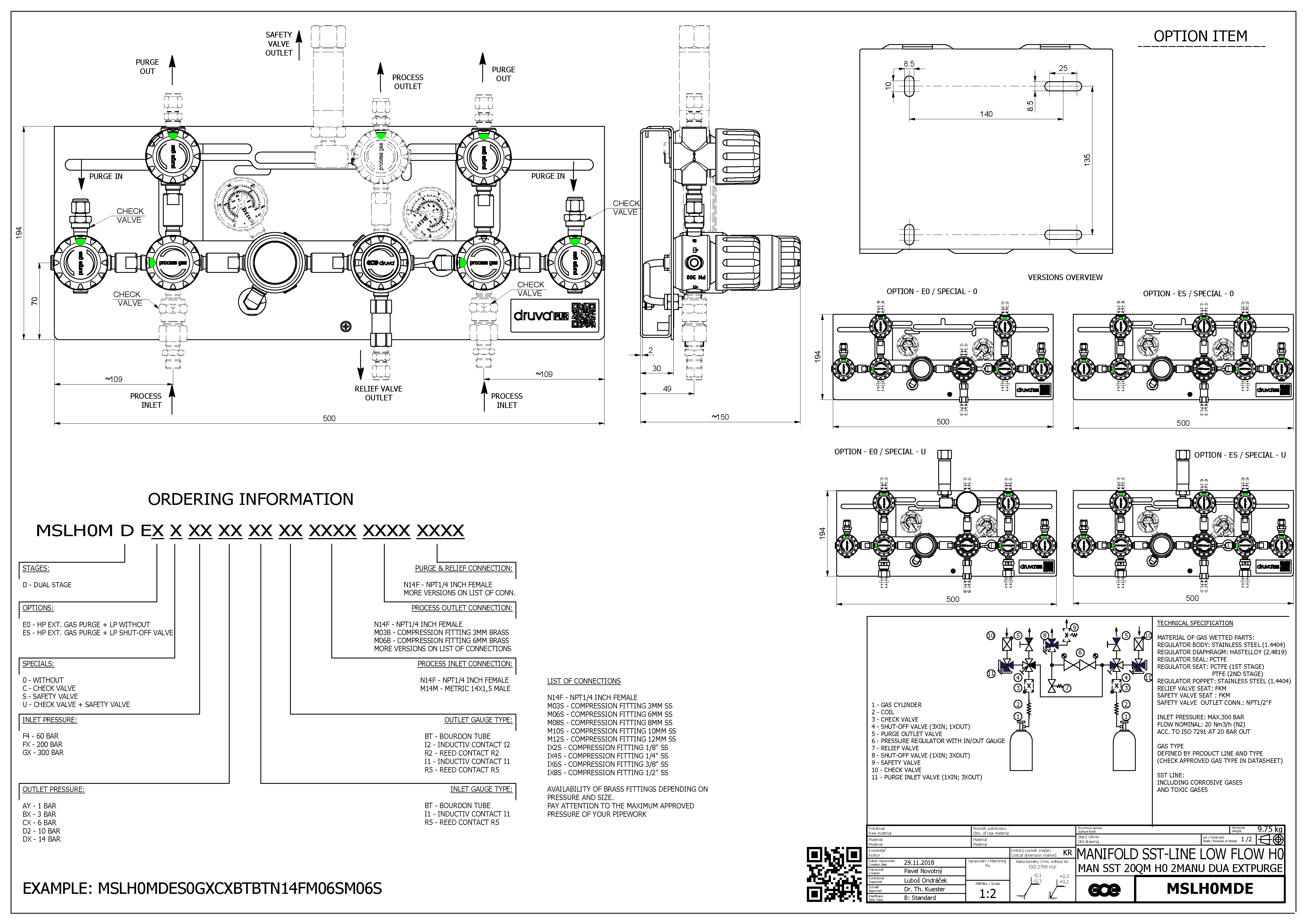
LOW FLOW RANGE - DUAL STAGE - EXTERNAL GAS PURGING SYSTEM

MANIFOLD FOR PURE GAS SUPPLY SYSTEMS, Two sources, Manual change over system, External gas purging system

The manifold used in gas supply systems for pure, inert, flammable, oxidizing, corrosive, toxic gases and gas mixtures. Maximum gas purity is 6.0. 

TECHNICAL SPECIFICATION

  • Switching between two sources by the manual valve actuation
  • Regulator and Valves - Hastelloy/Elgiloy diaphragm tighting system to atmosphere
  • Compact design
  • Excellent pressure adjustment
  • Valves - designed and approved in accordance with relevant sections of EN ISO 10297:2015
  • Regulator - designed and approved regarding ISO 7291
  • A relief valve in the delivery pressure side
  • Manifold with purge valves for external gas purging
  • Available with a shut-off valve at outlet, safety valve at outlet, check valve at the inlet
  • Electrostatic chargeabitlity test
    • Fulfils requirements according to DIN EN ISO 80079-36, IEC TS 60079-32-1 and German TRGS 727
    • Usable in Ex-areas zones 1 and 2 for gases with explosion risk group I, IIA, IIB, IIC

SPECIAL FEATURES OF MANIFOLD

  • Splitted plates of the manifold
    • Separated mounting of the ground plate
    • Easy mounting of the manifold to ground plate and fix with one screw only
  • Front plate cutout for in-field gauge replacement

TECHNICAL DATA

Working temperature: -20°C to +60°C
Material: Stainless steel
Material bracklet: Stainless steel
Flow nominal: 20m3/h (N2) according to ISO 7291 at 20 bar outlet pressure and 41 bar inlet pressure
Pressure rates manifold:  
   Max. inlet pressure: 300 bar
   Delivery pressure: 2/3/6/10/14 bar

Technical datasheets

MSLHXMDE: Product sheet-Manifold for two sources-manual change over system (stainless steel), Low floe range - dual stage- external gas purging system EN

Direct link to druva product configurator

Technical Drawings Top

Download Technical Drawings

Acrobat Logo MSLH0MDE_drawings.pdf Acrobat Logo MSLHEMDE_drawings.pdf
Downloads Top

Additional Downloads for this Product

Acrobat Logo IFU-MXLHXMD_web.pdf